Q641F气动法兰球阀
- 销售:
- 销售:
- 传真:
详情介绍
- 产品介绍
- 服务承诺
- 订货流程
Q641F气动法兰球阀是一种转角为90°的旋转类阀门,密封性能优良,流量系数大,流阻系数小,结构简单,使用寿命长,便于维修。配用的执行机构是引进国外先进技术生产的Bray系列气缸式执行机构,球阀分单作用和双作用两种型号。产品广泛应用于化工、石油、轻纺、电力、食品制药、制冷、造纸行业的系统控制。
气动法兰球阀性能参数
公称通径DN(mm) | DN15~DN400 |
公称压力 | 1.6、4.0、6.4MPa、ANSI150、300(Lb)、JIS10、20K |
适用介质 | 水、石油、硝酸类、醋酸类、粘性流体、浆料、强氧化性介质等 |
介质温度 | -40~+180℃ -40~+350℃ |
泄漏量 | 0 符合ANSIB16.104 5级标准 |
球体转角 | 90° |
阀体材制质 | A105、F304、F316、WCB、FZG1Cr18Ni9Ti、ZG1Cr18Ni12Mo2Ti、CF8、CF8M、CF3M |
阀座材料 | 聚四氟乙烯(常温)、特制PPL(高温) |
防爆级组 | dⅡBT4(d2c4)(可供普通型、防爆型二种规格) |
电磁阀电源 | 220VAC、24VDC |
气源压力 MPa | 0.4~0.7MPa |
固有可调比 R | 100:1 |
气动法兰球阀主要零件材料
零件名称 | 零件材料 | |||
阀体、阀盖 | WCB | 304(CF8) | 316(CF8M) | 316L(CF3M) |
球体 | 2Cr13+氮化处理 | 304 | 316 | 316L |
阀杆 | 2Cr13 | 304 | 316 | 316L |
阀座密封圈 | PTFE、碳素纤维+PTFE、对位聚苯 | |||
填料 | V型PTFE、柔性石墨 | |||
注:球体可根据用要求选用不同材质:A105、304、316、316L、LF2、F51、42CrMo、Monel、17-4PH、CF8、CF8M等。
气动法兰球阀流量特性Kv值
公称通径 | 不同开度角下的Kv值 | ||||||||
10° | 20° | 30° | 40° | 50° | 60° | 70° | 80° | 90° | |
50 | 2 | 4 | 9 | 17 | 32 | 60 | 97 | 151 | 215 |
80 | 6 | 11 | 22 | 44 | 83 | 155 | 250 | 389 | 550 |
100 | 9 | 18 | 34 | 71 | 133 | 248 | 398 | 620 | 890 |
150 | 20 | 40 | 80 | 160 | 300 | 560 | 900 | 1400 | 2000 |
200 | 36 | 72 | 143 | 286 | 737 | 1002 | 1611 | 2506 | 3580 |
250 | 57 | 113 | 226 | 453 | 848 | 1582 | 2253 | 3955 | 5650 |
300 | 81 | 163 | 325 | 651 | 1220 | 2278 | 3661 | 5695 | 8100 |
350 | 110 | 221 | 443 | 885 | 1750 | 3541 | 5311 | 7967 | 10950 |
400 | 150 | 303 | 605 | 1113 | 2424 | 4850 | 7275 | 10910 | 15300 |

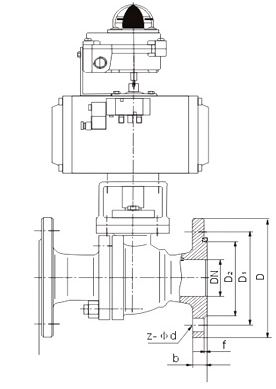
气动法兰球阀尺寸:
| 公称通径 DN(mm) | 尺 寸(mm) | |||||||||||||||
| 1.6MPa | 2.5MPa | 4.0MPa | 6.4MPa | |||||||||||||
| L | D | D1 | Z-фD | L | D | D1 | Z-фD | L | D | D1 | Z-фD | L | D | D1 | Z-фD | |
| 15 | 130 | 95 | 65 | 4-14 | 130 | 95 | 65 | 4-14 | 130 | 130 | 65 | 4-14 | 140 | 105 | 75 | 4-14 |
| 20 | 140 | 105 | 75 | 4-14 | 140 | 105 | 75 | 4-14 | 140 | 150 | 75 | 4-14 | 152 | 125 | 90 | 4-18 |
| 25 | 150 | 115 | 85 | 4-14 | 150 | 115 | 85 | 4-14 | 150 | 160 | 85 | 4-14 | 180 | 135 | 100 | 4-18 |
| 32 | 165 | 135 | 100 | 4-18 | 165 | 135 | 100 | 4-18 | 180 | 180 | 100 | 4-18 | 200 | 150 | 110 | 4-23 |
| 40 | 180 | 145 | 110 | 4-18 | 180 | 145 | 110 | 4-18 | 200 | 200 | 110 | 4-18 | 220 | 165 | 125 | 4-23 |
| 50 | 200 | 160 | 125 | 4-18 | 200 | 160 | 125 | 4-18 | 220 | 230 | 125 | 4-18 | 250 | 175 | 135 | 4-23 |
| 65 | 220 | 180 | 145 | 4-18 | 220 | 180 | 145 | 8-18 | 250 | 290 | 145 | 8-18 | 280 | 200 | 160 | 8-23 |
| 80 | 250 | 195 | 160 | 8-18 | 250 | 195 | 160 | 8-18 | 280 | 310 | 160 | 8-18 | 320 | 210 | 170 | 8-23 |
| 100 | 280 | 215 | 180 | 8-18 | 280 | 230 | 190 | 8-23 | 320 | 350 | 190 | 8-23 | 360 | 250 | 200 | 8-25 |
| 125 | 320 | 245 | 210 | 8-18 | 320 | 270 | 220 | 8-25 | 360 | 270 | 220 | 8-25 | 381 | 295 | 240 | 8-30 |
| 150 | 360 | 280 | 240 | 8-23 | 360 | 300 | 250 | 8-25 | 400 | 300 | 250 | 8-25 | 403 | 340 | 280 | 8-34 |
| 200 | 400 | 335 | 295 | 12-23 | 400 | 360 | 310 | 12-25 | 502 | 375 | 320 | 12-30 | ||||
良好的品质、优良的服务 乐鱼在线登录入口-乐鱼(中国)-乐鱼为你创造更多价值!
“乐鱼在线登录入口-乐鱼(中国)-乐鱼”的期望,不断提升服务质量,精益求精,“真诚的服务”是“乐鱼在线登录入口-乐鱼(中国)-乐鱼”永恒的主题。“乐鱼在线登录入口-乐鱼(中国)-乐鱼”严格按照IS09001-2000 质量体系认证要求,质量严格把关, 责任到人,确保生产、销售、服务的健康运行。加强与用户沟通,竭诚为广大客户提供优良产品,至善至美服务。特此我厂做出以下承诺:
产品标准:
产品严格按照中国GB、HG 标准和美国API等标准设计、制造、验收。密封面硬度达到国家规定要求,宽度超过国家标准。
售前服务:
产品介绍,技术交流,非标产品设计,疑难解答。
售中服务:
守信合同,保证及时供货,随时保持与客户联系。 对特殊或复制的产品,我厂安排技术人员对用户进行产品使用、故障排除
售后服务:
1、“乐鱼在线登录入口-乐鱼(中国)-乐鱼”牌产品品质期为自出厂起12个月,实行“三包”服务(包退、包换、保修)。
2、产品在使用中我厂定期组织技术、质检人员进行访问,征询用户对产品质量、 使用状况、改进意见等方面的反馈, 以便进一步提高产品质量。
3、对用户投诉质量问题,快速作出反应,售后服务人员在24-36小时(省外48小时)赶赴现场。
4、对售后服务,要求用户填写服务后的质量反馈信息表,并作出鉴定意见,以便提高乐鱼在线登录入口-乐鱼(中国)-乐鱼的服务质量。
1、客户如对产品有特殊要求,须在订货合同中提供以下说明:
a、结构长度;
b、连接形式;
c、公称直径、全通径、缩径、管道尺寸;
d、运行介质及温度、压力范围;
e、试验、检验标准及其他要求
2、本厂可根据客户特定要求配置各类驱动装置。
3、如由客户提供确定的阀门类型和型号时,客户应正确说明其型号的含义和要求,在供需双方理解一致的条件下签订合同。
4、期货、订货的客户请先来电函详细告诉所需的阀门型号、规格、数量以及交货时间、地点,并按总的30%预定金或全额货款及时汇入我厂帐户,其余货款待发货前汇入,以便及时安排发货。
订单流程:
1、客户采购清单传真至,或来电咨询
2、收到客户采购清单,为客户提供阀门型号选型与报价(价格清单)。
3、具体商定:交货期、特殊要求等事宜。
订货须知:
1、客户如对产品有特殊要求,须在订货合同中提供以下说明:
|
|||||
|
|||||
2、本厂可根据客户特定要求配置各类驱动装置。
|
|||||
3、如由客户提供确定的阀门类型和型号时,客户应正确说明其型号的含义和要求,在供需双方理解一致的条件下签订合同。
|
|||||
4、期货、订货的客户请先来电函详细告诉所需的阀门型号、规格、数量以及交货时间、地点,并按总的30%预定金或全额货款及时汇入我厂账户, 其余货款待发货前汇入,以便及时安排发货。
|
售中服务:
守信合同,保证及时供货,随时保持与客户联系。
对特殊或复制的产品,我厂安排技术人员对用户进行产品使用、故障排除
售后服务:
1、“乐鱼在线登录入口-乐鱼(中国)-乐鱼”产品品质期为自出厂起12个月,实行“三包”服务(包退、包换、保修)。
2、产品在使用中我厂定期组织技术、质检人员进行访问,征询用户对产品质量、使用状况、改进意见等方面的反馈,
以便进一步提高产品质量。
3、对用户投诉质量问题,快速作出反应,售后服务人员在24-36小时(省外48小时)赶赴现场。
4、对售后服务,要求用户填写服务后的质量反馈信息表,并作出鉴定意见,以便提高“乐鱼在线登录入口-乐鱼(中国)-乐鱼”的服务质量。
声明 |
|